Australia

# Sold Please Contact Agent

236 North Arm Yandina Creek Road, North Arm, Qld 4561

# Location

Description

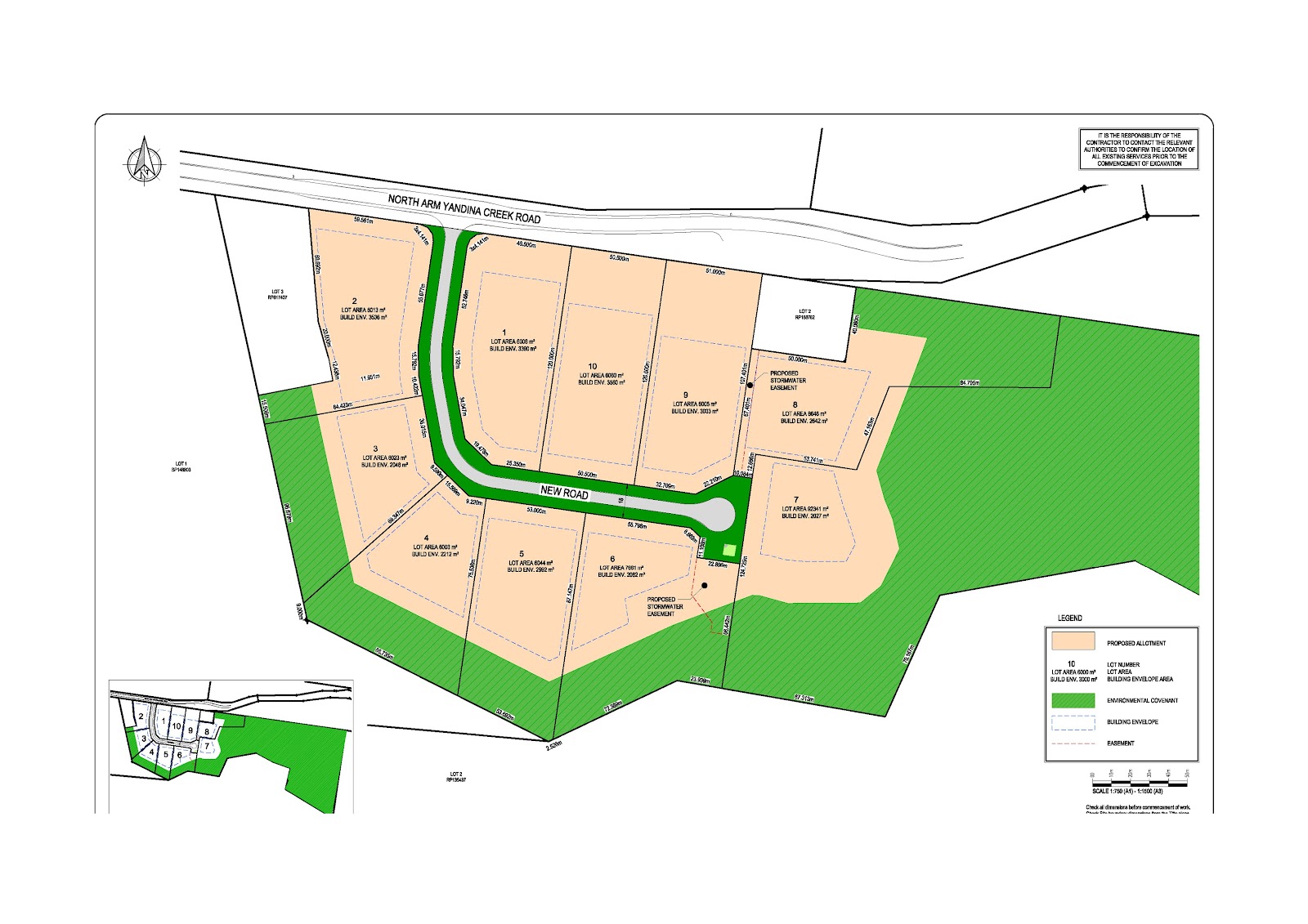
PRIME 1 1/2 ACRE LOT WITH POTABLE WATER BORE Lot 3 Tatnell Place (off 236 North Arm Yandina Creek Road), North Arm

Be inspired for your next move! Tatnell Place is officially registered and the ten (10) acreage lots are ready to welcome only a lucky few to the freedom of acreage living.

Just a short 8 minutes drive to Yandina shopping village and under 30 minutes to the beautiful Sunshine Coast beaches and Maroochydore CBD.

Now officially registered as 6 Tatnell Place, Lot 3 has two potable water bores sunk and capped*, large building envelope and a building pad cut for a granny flat.

The location is on the east side of the M1 in a rural setting, delivering the perfect balance of country community living with the convenience of everything living on the Sunshine Coast has to meet your needs.

Imagine building your dream home surrounded by a natural green landscape of rolling hills that provides those plentiful feelings of freedom, coupled with plentiful water!

Features at a Glance:

• Cul-de-sac access off North Arm Yandina Creek Road • Gently sloping 6,023 sqm block in serene country setting • 2,046 sqm building envelope • 45.6 m frontage with no driveway access restrictions • Underground services excluding town water and sewer to front boundary • Drinkable quality water bore sunk and capped • No Estate covenants or restrictions • Easterly elevated orientation • 8 minutes drive to Yandina (very popular Saturday markets) and train station • 8 minutes drive to M1 access • 15 minutes walk to the North Arm State Primary School • 23 minutes drive to Coolum Beach • 2 minutes drive to the Eumundi Conservation Park (494 ha.)

This Lot is one of only four remaining, and with several builds now underway, you will need to act fast!

This is an incredible chance to secure your place within this unique and pristine location so...

Call Mark today on 0432 074 867 to discuss the possibilities...

Note: The home pictured will be built on Lot 2

Disclaimer: We have, in preparing this information, used our best endeavours to ensure that the information contained herein is true and accurate, but accept no responsibility and disclaim all liability in respect of any errors, omissions, inaccuracies or misstatements that may occur. Prospective purchasers should make their own enquiries to verify the information contained herein.

View More #

Floor Plans

Location

  • Contact the agency

    To request an inspection

  • # Call # Email

Mark Rodes

Agent Name

# Report Listing

Looking for a property?

  • Top listings
  • Investment
  • Development
  • Personal home
  • Price reports
  • Suburb reports

Do you own a property?

  • Place a free listing
  • Services for private advertisers
  • Guide to selling your home
  • Insurance
  • Improve the photos of your listing
  • Value your property for free

Are you a real estate proffesional?

  • Publish your agencies properties
  • Already a client? Log into your account
  • Advertising on Australian Real Estate
  • Australian Real Estate data technology for property insights
  • Real Estate courses